
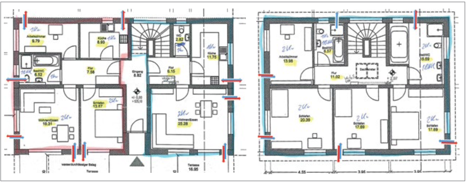
TECHNOLOGY DEMONSTRATOR PRIVATE RESIDENCE IN MUNICH
VENTILATION TYPE/CONCEPT: Combined single-room and centralized ventilation
COMMISSIONED: May 2018
COMPLETED BY:
Emmeringer Heizungsbau GmbH
Anton-Pendele-Straße 5, 82275 Emmering
CLIENT: Private person
FEATURES: Easy switching to Wi-Fi control

Thank you for subscribing. We look forward to sending you valuable information.